Rustig gelegen BEN-woning
Eengezinswoning voor € 389.000
Meuffelstraatje 1/A, 3650 Dilsen-Stokkem
Ref: spir1452
4 slaapkamers
1 badkamer
235m2 woonopp.
Bouwjaar: 2025
Omschrijving
In hartje Stokkem worden deze 2 ruime BEN-woningen gebouwd met oog voor detail en kwaliteit. Deze kwalitatieve woningen worden gebouwd naast het voormalige Stadhuis van Stokkem, tussen de Rechtestraat en de Poelstraat.
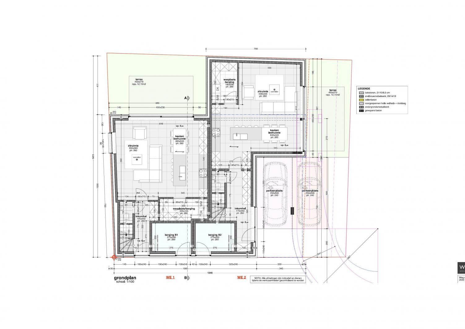
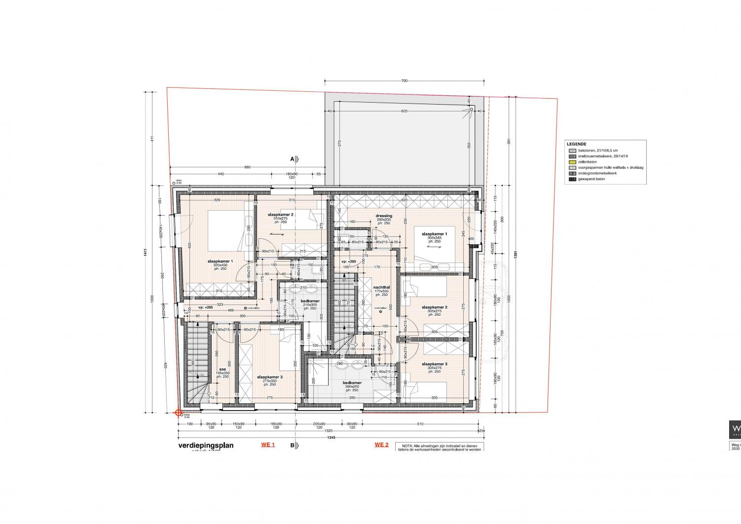
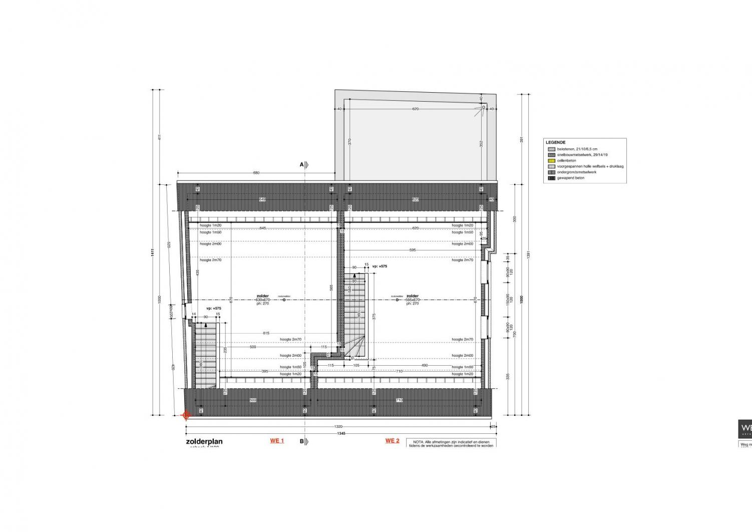
De woning zal volledig afgewerkt worden door de bouwheer. Beide woningen zullen met een hoge afwerkingsgraad en groot comfort gebouwd worden. De indeling is als volgt: op het gelijkvloers bevinden zich de inkomhal met vestiaire en gastentoilet, woonkamer met open keuken, was- en bergplaats, berging met buitendeur en een aangelegd terras. Op de eerste verdieping treffen we de nachthal, een apart toilet, badkamer en 3 slaapkamers. De zolder is bereikbaar via een vaste trap en zal ook afgewerkt worden. Hier kan een vierde slaapkamer gecreëerd worden. Bij elke woning is een parkeerplaats voorzien.
Een degelijke designkeuken is inbegrepen (inspraak door de koper is momenteel nog mogelijk). De badkamer wordt hoogwaardig afgewerkt met een inloopdouche en dubbel lavabomeubel. Terras wordt aangelegd. Volgens de startverklaringen voor het EPB is een E-peil van E4 vooropgesteld voor de linker woning en E10 voor de rechter woning.
Een unieke kans voor wie luxueus wil wonen in het hartje van Stokkem. De woning zal afwerkt zijn tegen november 2025. Verkoop onder registratierechten (geen btw)! Meer info en plannen via 011 233 044.
Pluspunten van deze woning:
-Vloerverwarming op de 3 verdiepingen met warmtepomp
-10 zonnepanelen per woning
-Regenwaterput 10.000 liter
-Hoogwaardige afwerkingsgraad
-Rustig gelegen
De woning zal volledig afgewerkt worden door de bouwheer. Beide woningen zullen met een hoge afwerkingsgraad en groot comfort gebouwd worden. De indeling is als volgt: op het gelijkvloers bevinden zich de inkomhal met vestiaire en gastentoilet, woonkamer met open keuken, was- en bergplaats, berging met buitendeur en een aangelegd terras. Op de eerste verdieping treffen we de nachthal, een apart toilet, badkamer en 3 slaapkamers. De zolder is bereikbaar via een vaste trap en zal ook afgewerkt worden. Hier kan een vierde slaapkamer gecreëerd worden. Bij elke woning is een parkeerplaats voorzien.
Een degelijke designkeuken is inbegrepen (inspraak door de koper is momenteel nog mogelijk). De badkamer wordt hoogwaardig afgewerkt met een inloopdouche en dubbel lavabomeubel. Terras wordt aangelegd. Volgens de startverklaringen voor het EPB is een E-peil van E4 vooropgesteld voor de linker woning en E10 voor de rechter woning.
Een unieke kans voor wie luxueus wil wonen in het hartje van Stokkem. De woning zal afwerkt zijn tegen november 2025. Verkoop onder registratierechten (geen btw)! Meer info en plannen via 011 233 044.
Pluspunten van deze woning:
-Vloerverwarming op de 3 verdiepingen met warmtepomp
-10 zonnepanelen per woning
-Regenwaterput 10.000 liter
-Hoogwaardige afwerkingsgraad
-Rustig gelegen
Ruimtelijke ordening
| Bouwvergunning | Ja |
| Recente bestemming | Woongebied |
| Dagvaardingen | Nee |
| Voorkooprecht | Nee |
| Verkavelingsvergunning | Nee |
| Effectief overstromingsgevoelig | Nee |
| Mogelijk overstromingsgevoelig | Nee |
| Afgebakend overstromingsgebied | Nee |
| Afgebakende oeverzone | Nee |
| Risicozone voor overstromingen | Nee |
| G-score | Onbekend |
| P-score | A |
Comfort
| Keukentype | Geïnstalleerd |
| Badkamer type | Ingericht |
| Vloerverwarming | ja |
| Centrale verwarming | ja |
| Zonnepanelen | ja |
| Warmtepomp | ja |
| Dubbelglas | ja |
| Beglazing | Dubbel glas |
| Huisdieren toegelaten | ja |
| Aansluiting elektriciteit | ja |
| Aansluiting riolering | ja |
| Aansluiting telefoonlijn | ja |
| Aansluiting Internet | ja |
| Aansluiting waterleiding | ja |
| Waterput | ja |
Financiële info
| Prijs | € 389.000,00 |
| Registratierechten en erelonen | € 11.364,34 |
Overige Info
| Vrij op | bij oplevering |
| Tuin aanwezig | ja |
| Aantal douches | 1 |
| Aantal parkeerplaatsen | 1 |
| Instapklaar | ja |
| Fietsenberging | ja |
Bebouwing
| Bebouwing | halfopen |
| Bouwjaar | 2025 |
| Aantal slaapkamers | 4 |
| Aantal badkamers | 1 |
| Aantal wc's | 2 |
| Staat | Nieuwe staat |
| Woonoppervlakte | 235 m² |
| Elektrisch keuringsattest | Niet ingegeven |
| Renovatieplicht | Nee |
Alle aanbiedingen gelden onder voorbehoud van fouten, eerdere verkoop, prijswijzigingen of vergetelheid.